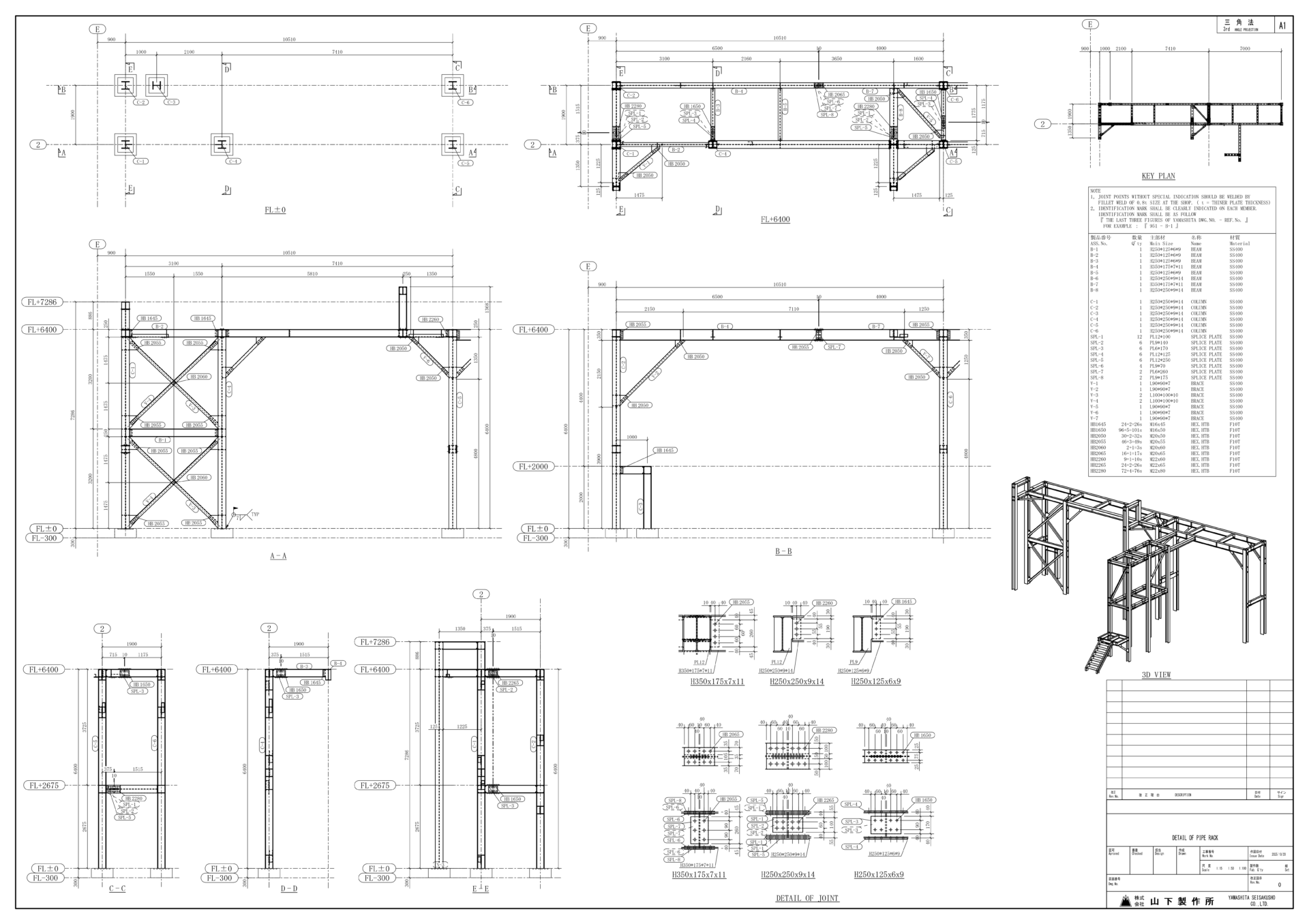
2023.6.14 Pipe rack Pipe racks or support racks are used to support pipes, ducts or cables in power plants or industrial plants. Drawing of pipe rack