06-6472-2351
受付:8:10~17:00
お問い合わせ
採用情報
Search
トップ
事業内容
パイプサポート事業
鉄鋼構造物事業
製品紹介
パイプサポート製品
制振・防振装置
鉄鋼構造物製品
設備紹介
会社情報
代表挨拶
会社概要
アクセス
沿革
グループ会社情報
Close Menu
Close
Skip to content
Menu
株式会社山下製作所
Search
トップ
事業内容
パイプサポート事業
鉄鋼構造物事業
製品紹介
パイプサポート製品
制振・防振装置
鉄鋼構造物製品
設備紹介
会社情報
代表挨拶
会社概要
アクセス
沿革
グループ会社情報
Close Menu
2023.6.14
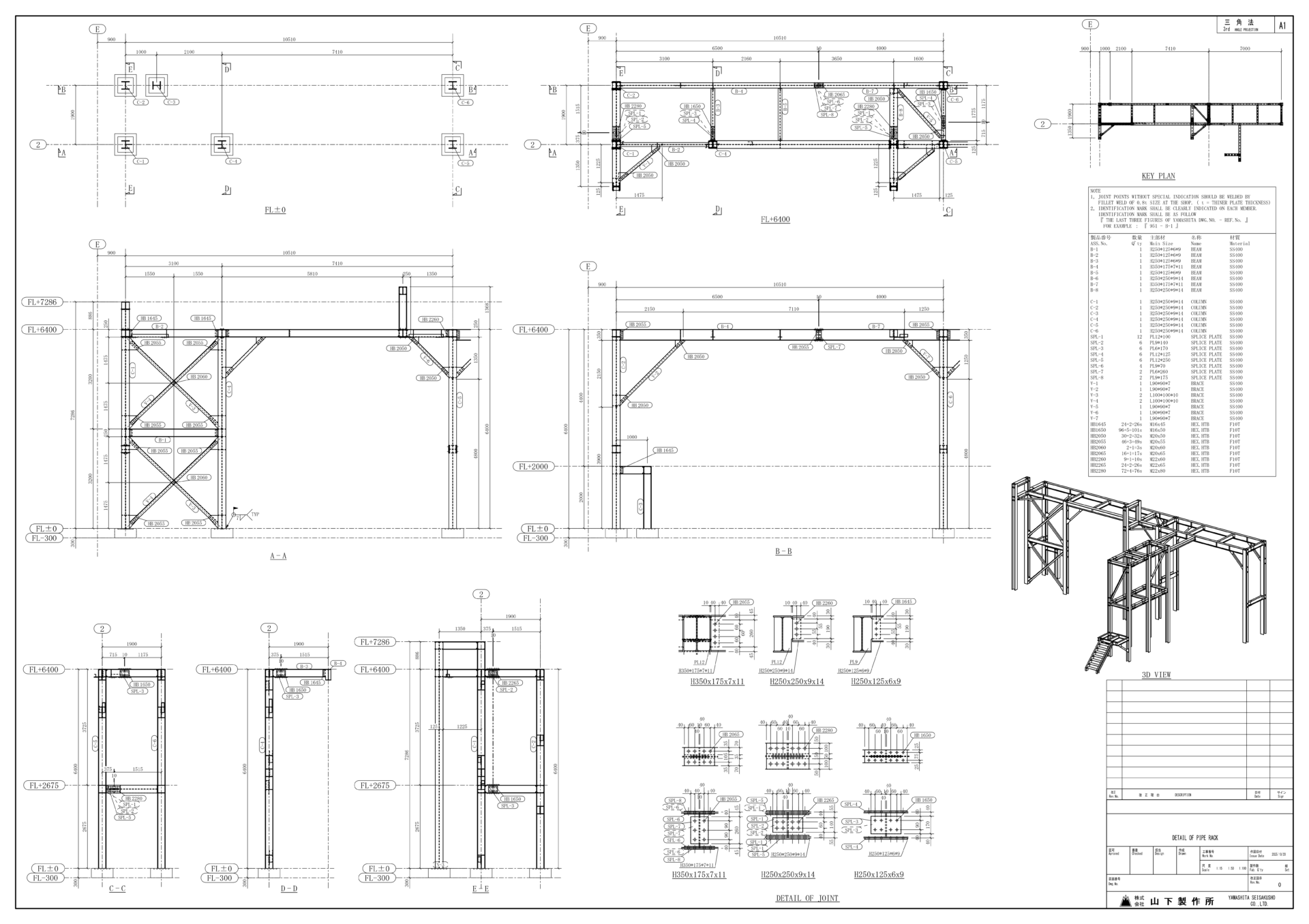
パイプラック
プラントや工場設備内の配管やダクト、ケーブルなどをまとめて支持する架構物です。
詳細はこちら
パイプラック図面
製品や納期に関するお問い合わせ、
お見積りのご依頼など、お気軽にお問合せください。
電話お問合わせ
メールお問合わせ
資料ダウンロード
トップ
事業内容
パイプサポート事業
鉄鋼構造物事業
製品紹介
パイプサポート製品
制振・防振装置
鉄鋼構造物製品
設備紹介
会社情報
代表挨拶
会社概要
アクセス
沿革
グループ会社情報